Location: Главная > Hовости
ДПК оборудование
ДПК (древесно-полимерный композит). Из него строят заборы/ворота, обшивают дома сайдингом из ДПК, строят беседки, делают уличную мебель, покрывают террасы, делают ограждения и многое другое.
Преимущество данного материала: 
  Этот композитный материал сделан путем экструзии, т.е. смешения двух компонентов: дерева и полимера. Внешне он выглядит как натуральное дерево, и в тоже время обладает всеми преимуществами полимера: не горит, не подвержен плесени, гниению и грибкам, долговечный и прочный материал.
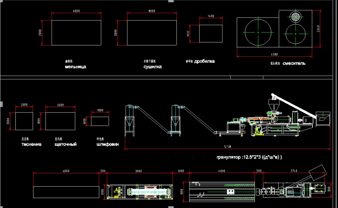
  Состав:
Автоматический загрузчик    
Фильера                    
Калибровочный стол
Охлаждающий транспортер (с обрезки кромки)
Тянущее устройство
Отрезное устройство
Штабелирующее устройство

Система электроуправления